skip to main content
$4,750,000

3012 Unionville Rd, Cranberry Twp, PA 16066

Active #1738603
Cranberry TwpButler County
Warehouse3.32 Acres
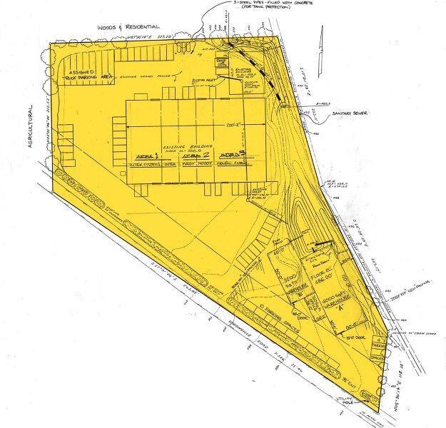
Investment-focused multi-building commercial property located in Cranberry Township. The offering includes four buildings totaling approximately 36,200 square feet (24,000 SF, 6,000 SF, 3,200 SF, and 3,000 SF) currently leased to five established businesses, providing in-place income with defined lease terms. An additional vacant area of approximately 1,900 square feet offers potential for future leasing and added income. The property features functional warehouse and office configurations, on-site parking, and convenient access to major transportation routes and surrounding commercial corridors. A solid opportunity for investors seeking stabilized income with upside potential.
Presented ByJim Pigott Real Estate
General Information
For Sale Building, Land
Gross Annual Income 430000
Lot Size 3.32
Taxes $42,971
Zoning MU
Exterior Features
Loading Dock Yes
Interior Features
Freight Elevator No
Warehouse Sqft 38,100
Utilities
Utilities Available Electricity, Gas, Sewer, Water

Map

Drive Time Estimator

Add locations to calculate your drive time to this property.

Mortgage Estimator

principal + interest
$0
$
price
% down
$
loan
%
years
+
taxes
$3,581
$
taxes/yr
+
insurance
$0
$
ins./yr
=
monthly cost
$0
Total Monthly Cost

For more details, use our mortgage comparison and amortization tool.

This is an estimate which can be affected by your lender's rates, PMI requirements and other factors. For the most accurate information, contact a mortgage representative.

Listing courtesy of COLDWELL BANKER REALTY

Information Herein is Deemed Reliable but Not Guaranteed

Get In Touch About This Property
Presented ByJim Pigott Real Estate

I'd like to:

Email This Property

Fill out the form below to email this property to a friend!

Login
Register
Log In To Use This Feature

Log in to access your saved properties, easily request more information, get customized mortgage calculations and more! Or register a new account.

Register to Use This Feature

Creating an account allows you to save properties, easily request more information, get customized mortgage calculations and more!

Forgot Password

Enter your email address in the box below and click "Reset Password" to send an email with instructions to reset your password.